
Розширений формат 167 м² із масштабом та свободою планування. Збільшені спальні, простора спільна зона та ділянка 8 соток.

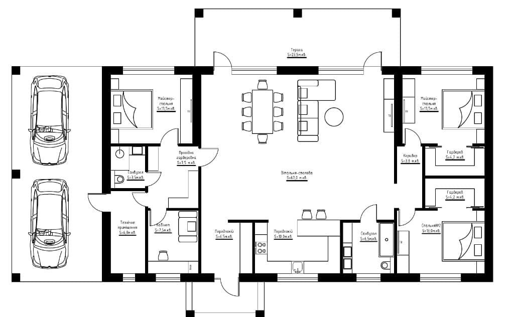
Просторе планування з великою кухнею-вітальнею, яка об'єднує сім'ю за спільними обідами та вечерями. Три окремі спальні дозволяють кожному мати свій особистий простір.
Ділянка 8 соток — це повноцінний двір із місцем для ландшафтного дизайну, зони відпочинку та дитячих розваг. Будинок відчувається як справжній дім із першого дня.


Щомісячний платіж на період розстрочки
*Середньомісячна сума виплат є орієнтовною та зазначається з метою ознайомлення
Ми можемо реалізувати для вас дизайн-проєкт і ремонт під ключ, щоб будинок одразу став готовим до життя. Площа 167 м² дозволяє створити інтер’єр, у якому буде зручно всій родині з просторими спальнями, великою кухнею та достатньою кількістю місця для зберігання.
У результаті ви заселяєтесь у дім, де вже все підготовлено для щоденного комфорту.




Граб

Ясен

Дуб
Тут ранок починається зі світла в панорамних вікнах, а день проходить без міської метушні, але з доступом до всієї інфраструктури Бучі та Києва. Це простір для життя, а не компромісів.
Конструкція
Залишити контакти
Оберіть дім для своєї родини. Залиште контакт, щоб отримати консультацію щодо планувань, фінансових умов та доступних ділянок.