
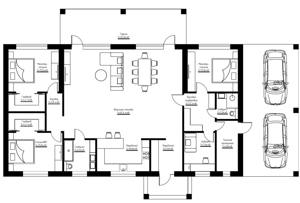
Найпросторіший формат — 167 м² на ділянці 11 соток. Великий будинок із масштабним плануванням для родини, яка цінує свободу та приватність.

Просторе планування 167 м² з великою кухнею-вітальнею, окремими спальнями та додатковими кімнатами для роботи чи хобі. Кожен член сім'ї отримує свій особистий простір.
Ділянка 11 соток — найбільша у селищі. Повноцінний двір для ландшафтного дизайну, басейну, зони відпочинку та дитячих розваг.


Щомісячний платіж на період розстрочки
*Середньомісячна сума виплат є орієнтовною та зазначається з метою ознайомлення
Ми можемо реалізувати для вас дизайн-проєкт і ремонт під ключ, щоб будинок одразу став готовим до життя. Площа 167 м² дозволяє створити інтер’єр, у якому буде зручно всій родині з просторими спальнями, великою кухнею та достатньою кількістю місця для зберігання.
У результаті ви заселяєтесь у дім, де вже все підготовлено для щоденного комфорту.




Граб

Ясен

Дуб
Тут ранок починається зі світла в панорамних вікнах, а день проходить без міської метушні, але з доступом до всієї інфраструктури Бучі та Києва. Це простір для життя, а не компромісів.
Конструкція
Залишити контакти
Оберіть дім для своєї родини. Залиште контакт, щоб отримати консультацію щодо планувань, фінансових умов та доступних ділянок.