
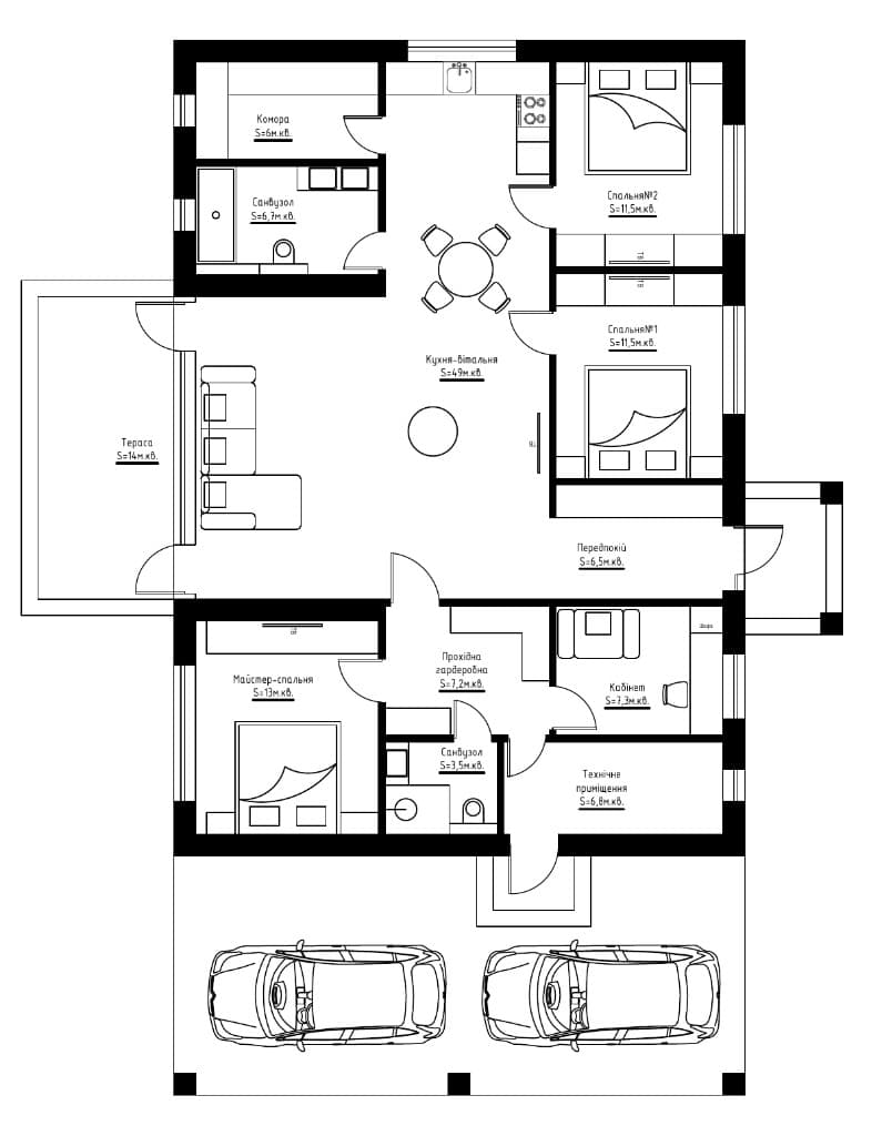
Будинок 130 м² з однією з найбільших ділянок — майже 10 соток. Збалансоване планування доповнюється простором для ландшафтного дизайну та повноцінної зони відпочинку.

Кухня-вітальня стає центром щоденного життя: спільні сніданки, вечірні розмови, вихід на терасу в теплий сезон. Продумане планування дозволяє ефективно використовувати кожен метр.
Ділянка майже 10 соток — одна з найбільших у селищі. Тут є простір для повноцінного саду, зони барбекю, дитячого майданчика та ландшафтних рішень.


Щомісячний платіж на період розстрочки
*Середньомісячна сума виплат є орієнтовною та зазначається з метою ознайомлення
Ми можемо реалізувати для вас дизайн-проєкт і ремонт під ключ, щоб будинок одразу став готовим до життя. Простір 130 м² дозволяє продумати зручні зони для всієї родини.
У результаті ви заселяєтесь у дім, де вже все зроблено для комфортного щоденного життя.




Граб

Ясен

Дуб
Тут ранок починається зі світла в панорамних вікнах, а день проходить без міської метушні, але з доступом до всієї інфраструктури Бучі та Києва. Це простір для життя, а не компромісів.
Конструкція
Залишити контакти
Оберіть дім для своєї родини. Залиште контакт, щоб отримати консультацію щодо планувань, фінансових умов та доступних ділянок.