
Компактний будинок 94 м² з ділянкою 4,44 соток. Зручний формат для пари або невеликої родини з продуманим плануванням.

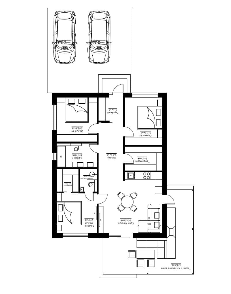
Продумане планування на 94 м² включає кухню-вітальню, дві спальні та функціональні зони для щоденного комфорту.
Ділянка 4,44 соток дає можливість облаштувати невеликий сад, зону відпочинку та паркувальне місце. Компактний, але повноцінний дім.


Щомісячний платіж на період розстрочки
*Середньомісячна сума виплат є орієнтовною та зазначається з метою ознайомлення
Ми можемо реалізувати для вас дизайн-проєкт і ремонт під ключ, щоб будинок одразу став готовим до життя. Без додаткових пошуків підрядників і без затягування процесу.
У результаті ви отримуєте не просто будинок, у який можна заїхати та жити одразу.




Граб

Ясен

Дуб
Тут ранок починається зі світла в панорамних вікнах, а день проходить без міської метушні, але з доступом до всієї інфраструктури Бучі та Києва. Це простір для життя, а не компромісів.
Конструкція
Залишити контакти
Оберіть дім для своєї родини. Залиште контакт, щоб отримати консультацію щодо планувань, фінансових умов та доступних ділянок.