
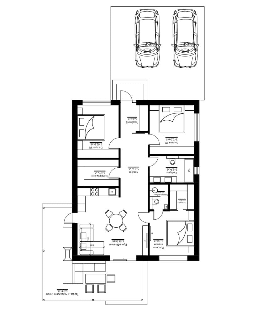
Компактний будинок 94 м² з ділянкою 4,44 соток. Зручний формат для пари або невеликої родини з продуманим плануванням.

Продумане планування на 94 м² включає кухню-вітальню, дві спальні та функціональні зони для щоденного комфорту.
Ділянка 4,44 соток дає можливість облаштувати невеликий сад, зону відпочинку та паркувальне місце. Компактний, але повноцінний дім.


Ми можемо реалізувати для вас дизайн-проєкт і ремонт під ключ, щоб будинок одразу став готовим до життя. Без додаткових пошуків підрядників і без затягування процесу.
У результаті ви отримуєте не просто будинок, у який можна заїхати та жити одразу.




Граб

Ясен

Дуб
Тут ранок починається зі світла в панорамних вікнах, а день проходить без міської метушні, але з доступом до всієї інфраструктури Бучі та Києва. Це простір для життя, а не компромісів.
Конструкція
Залишити контакти
Оберіть дім для своєї родини. Залиште контакт, щоб отримати консультацію щодо планувань, фінансових умов та доступних ділянок.